Any Cerdā

ARXIU CERDĀ__

L'evolució tipològica de l'habitatge 17.

Autor: Centre de Cultura Contemporània de Barcelona (CCCB)
FITXA DEL DOCUMENT

L'evolució tipològica de l'habitatge 17.

Centre de Cultura Contemporània de Barcelona (CCCB)

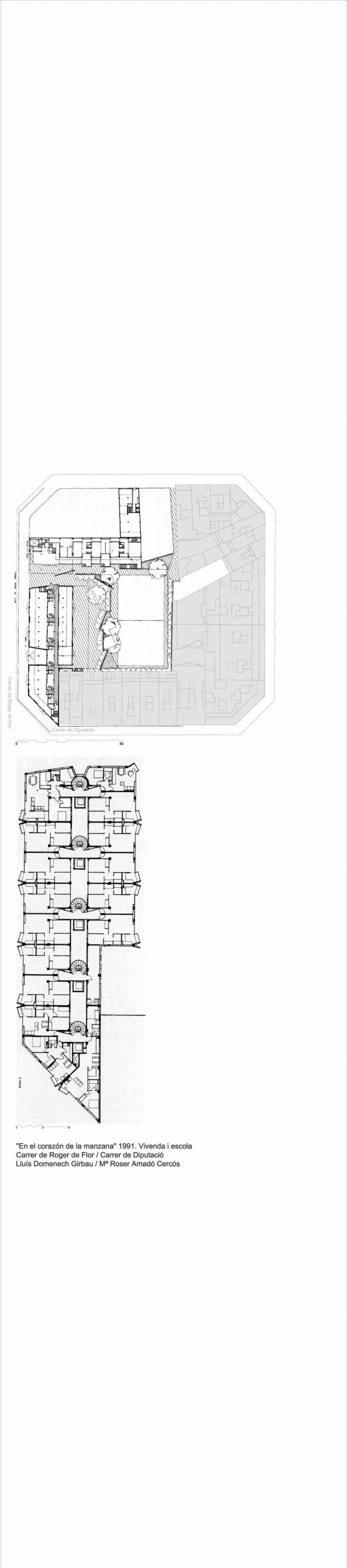
1991    Ús Mixte    El cor de la mançana    Carrer de Roger de Flor / Carrer de Diputació    Lluis Domenech Girbau / Mª Roser Amadó Cercós